关于发布《工业智能创新岛项目建设工程设计方案》的公告

2026年01月31日

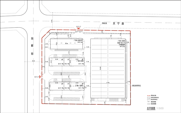
由国信腾远(北京)工程设计有限公司编制的天津立中车轮有限公司的《工业智能创新岛项目建设工程设计方案》,经保定市国土空间规划委员会2026年第一次专题会议审议通过,现将建设工程设计方案予以公布。

项目位于保定市创新街东侧、天宁路南侧。用地面积20346平方米,用地性质为工业用地。总建筑面积约2.10万平方米,其中地上约2.10万平方米,其他控制指标均符合规划要求。

2026年1月31日

主要经济技术指标

其中

项目

总用地面积

计容总建筑面积

总建筑面积

地上建筑面积

地下建筑面积

容积率

建筑密度

绿地率

数值

20346

约2.75

约2.10

约2.10

——

1.35

45.28

12.67

单位

平方米

万平方米

万平方米

万平方米

万平方米

-

%

%